google-site-verification: googlebecc981ff2138990.html
En Venta
Proyecto de Duplex a estrenar en Tala Sur
Código: 190339

C. 1 Bis & C. 81, B7105 San Clemente del Tuyu, Provincia de Buenos Aires, Argentina, San Clemente Del Tuyu, Buenos Aires, Argentina.

USD22.000

Dúplex
Compartir esta Propiedad

Descripción de la Propiedad

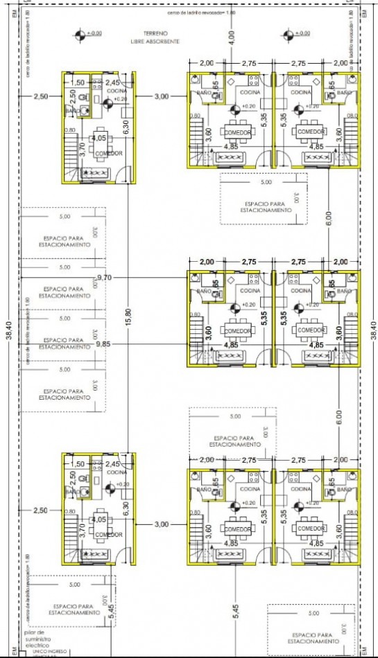
Venta de Duplex 3 Ambientes a Estrenar – Oportunidad en Barrio Tala Sur, San Clemente del Tuyú

Ubicado en Calle 1 Bis entre 81 y 82, este moderno complejo de 8 dúplex ofrece una excelente oportunidad de inversión o vivienda permanente, a solo 200 metros del mar y 500 metros del Vivero Cosme Argerich.
Un entorno residencial tranquilo, de gran crecimiento y con acceso rápido a las principales arterias de la ciudad.

Características del dúplex :
Desarrollado en dos plantas, con diseño funcional, ambientes luminosos y terminaciones modernas.
Planta Baja:
-Cocina-comedor integrada
-Baño completo
-Espacio vehicular

Planta Alta:
-Dos dormitorios

Excelente iluminación natural
Ambientes amplios y confortables

Estado del proyecto y valores:

2 unidades con entrega enero/febrero 2026 – U$D 22.000 (ENTREGADO, FOTOS)
6 unidades desde el pozo – U$D 26.000

Entrega pactada para 2026 (consultar condiciones)

Documentación en regla: escritura y planos aprobados
*Se acepta vehículo en parte de pago
*Entrega del 40% y saldo en cuotas
*Se escuchan ofertas de contado para unidades desde el pozo

Ideal para invertir o vivir cerca del mar!

Una oportunidad única para quienes buscan una propiedad a estrenar en una zona residencial en expansión, con flexibilidad de pago, excelente ubicación y alto potencial de renta turística o permanente.

Mas detalles
  • Acepta mascotas
  • En construcción
  • Luminoso
  • Patio
  • Comedor
  • Cerca de Escuelas
  • Alumbrado publico
  • Cloacas
  • Electricidad
  • Tendido Eléctrico
  • Planos aprobados
  • Entrada para Auto